“Per Aspera Ad Astra.” 由微塵到繁星,從黑暗到光明
「家,是一場動態的藝術,它能將獨一無二的生活節奏,譜寫成動人的交響樂章。」
這座位於高雄左營、擁有 28 年歲月的老宅,窗外倚著一片療癒的公園綠帶。屋主身為創業設計師,在後疫情的居家辦公時代,對於「家」有著更深層的渴望——空間不應是凝固的方盒,而是能隨需求流動的有機體。一個房間不再局限於固定、單一的使用模式,我們試著賦予空間更多彈性、更多元的角色,這裡不再是工作牢籠,而是動態藝術庇護所;如同貝多芬《第五交響曲》那震撼心靈的開場,我們揭開老屋翻新的序幕。將屋主悉心挑選的每一塊材料、每一件家具單品,如同音符般精準地拼貼在空間的旋律裡,讓生活在黑暗與光明、微塵與繁星之間,找到最優雅的平衡。


黑色玄關沉穩強烈的明暗對比,如同交響樂中強弱交織的旋律;推門瞬間,光影自弧形隔屏邊緣滲出,與窗外公園的綠帶視野展開一場明暗對話。圓潤的弧形語彙柔化了轉折,引導視線進入充滿儀式感的樂章。霧面杏色牆面輕量化的色調將機能完美隱藏——鞋櫃、汙衣櫃與儲藏室消融於立面之中,讓生活雜物在純粹的旋律裡隱形。


左圖:廚房原始屋況 / 中間:客廳原始屋況/右圖:工作室原臥房屋況
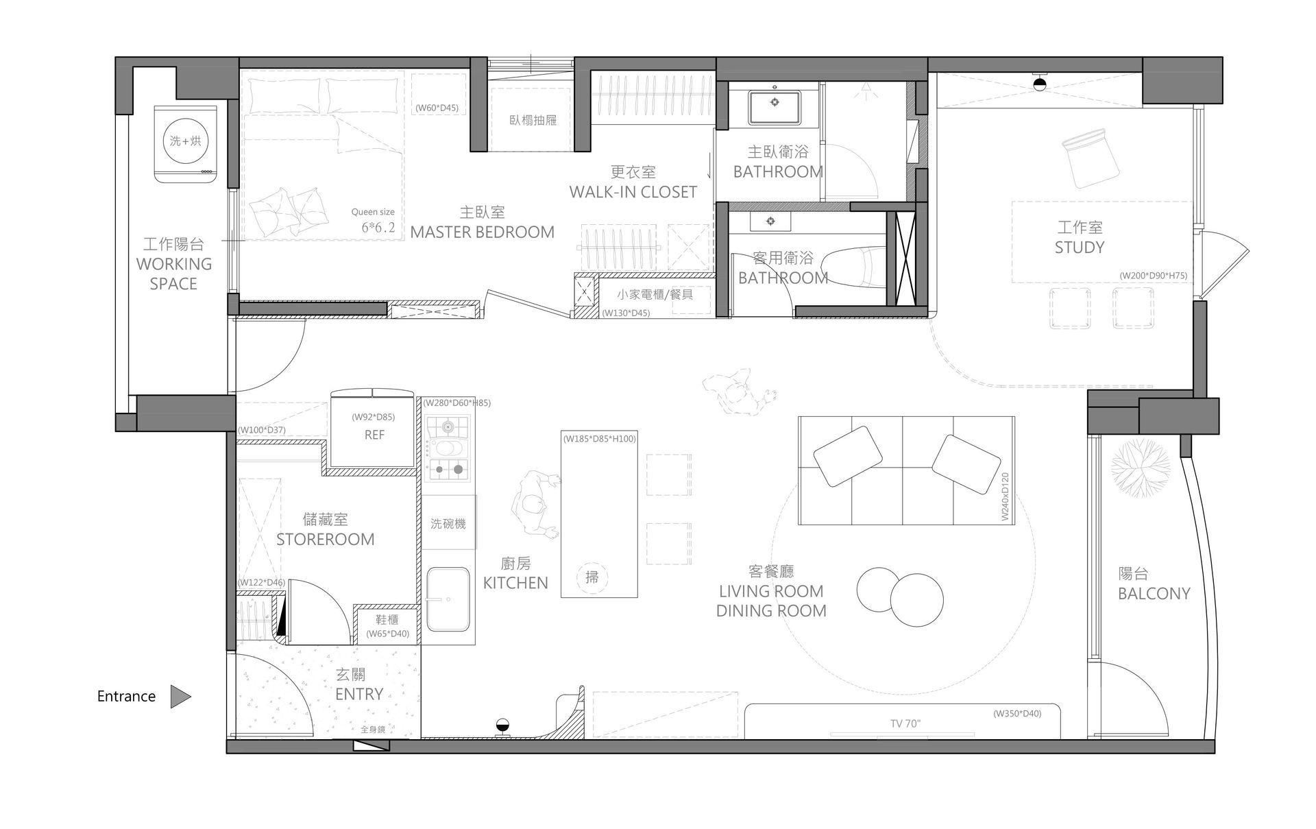
舊有的格局如同隱形屏障使客廳與臥室長期處於昏暗的狀態,拆除原有隔間牆打破混亂的格局框架把綠意及日光引入室內。

在此案中,我們致力於將儲物與烹飪機能「藝術化」。透過大面積的視覺留白,將繁雜的生活物件隱於無形,並以一只「回字型中島」定調空間的核心焦點。
藉由環繞式的流暢動線,中島不僅串聯起公領域的穿透感與互動性,更在無形中置入了極大化的收納能量。在這裡,日常生活的瑣碎被溫柔收納,完成了一場機能與美學的優雅轉身,讓家回歸最純粹、無壓的療癒場域。

/
空間注入美拉德色系的溫潤質感,以奶茶色為底,交織胡桃木與卡其色的層次,譜寫出一場大地色的「暖調變奏」。


在家中劃分出明確的工作區域,弧形軌道窗簾取代厚重牆體,保留老屋高度視覺讓空間靈活運用,創造機能流動與視覺動態。



空間的每一處留白與轉角,都是工作與生活交織的對話框。這裡,是提案創作時靈感碰撞的實驗室;是收工後身心安頓的暖房;也是瑜珈時隨心舞動的自由場域。我們刻意保留老屋原有的視覺高度,極大化空間的靈活性,讓機能隨動線自然流轉。



打通原先昏暗的臥房空間,讓公園的自然採光能灑進室內原每個角落,將窗外綠意延伸暈染到工作室主牆,搭配胡桃木書架牆靜謐陳列材質風格,也成為女主人詮釋創作與日常的靈感基地。


"From Creative Peak to Silent Sanctuary — A Bedroom’s Gentle Interlude."
踏入臥室,空間節奏由詼諧的變奏轉為安定的低吟。我們保留了雙面採光的優勢,讓自然光成為空間的靈魂。
在五坪的方寸之間,我們以「島嶼」為概念,巧妙整合了睡眠、閱讀、更衣與洗漱機能;各個場域如高低錯落的嶼礁,在光影洗禮下熠熠生輝。原有的畸零柱體不再是阻礙,轉化為窗邊的休憩臥榻,點上一盞溫潤黃光,這便是專屬於女主人最珍貴的獨處時光。










